12 TANNERY Street ECambridge, ON N3C2B9
Due to the health concerns created by Coronavirus we are offering personal 1-1 online video walkthough tours where possible.


Mortgage Calculator
Monthly Payment (Est.)
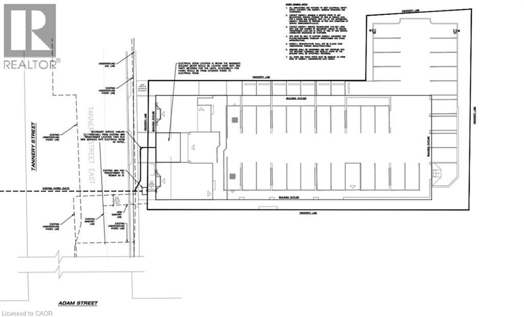
$9,581Rare, fully prepared development opportunity in the heart of Hespeler Village. Ideally located steps from the Speed River, boutique shops, cafés, and established residential neighbourhoods, this property offers the perfect blend of small-town charm and long-term investment potential. Site plan approved for 40 units and one cground floor commercial unit, this development offers a profitable mix of 1-2 and 3 bedroom units. Importantly, this site is not subject to the current regional development freeze related to municipal water servicing constraints. As one of the few areas in Waterloo Region where water allocation remains available, this property provides a significant advantage—allowing buyers to proceed without the uncertainty impacting many other projects. All required permits have been secured and fully paid, and the purchase price includes all development charges. With key approvals in place and major upfront costs already addressed, this is a true turnkey-ready opportunity that minimizes risk, shortens timelines, and accelerates the path to construction. Surrounded by a mix of historic character and thoughtful new development, 12 Tannery Street East presents an exceptional opportunity for builders and investors seeking a strategic project in one of Cambridge’s most desirable village settings. Full documentation available upon request. (id:31684)
| a week ago | Listing updated with changes from the MLS® | |
| a week ago | Listing first seen on site |
The trademarks MLS®, Multiple Listing Service® and the associated logos are owned by The Canadian Real Estate Association (CREA) and identify the quality of services provided by real estate professionals who are members of CREA. Used under license.
The trademarks REALTOR®, REALTORS®, and the REALTOR® logo are controlled by The Canadian Real Estate Association (CREA) and identify real estate professionals who are members of CREA. These trademarks are owned or controlled by The Canadian Real Estate Association (CREA) and identify real estate professionals who are members of CREA (REALTOR®) and/or the quality of services they provide (MLS®).
This REALTOR.ca listing content is owned and licensed by REALTOR® members of The Canadian Real Estate Association.
